The most common bathroom size measures 8 by 5 feet — enough room for a single sink, a toilet and a shower or shower-bathtub combination. You may think there isn’t much you can do with an area of this size. But you’d be wrong. Here, five projects within these dimensions showcase clever ways to create virtual and literal space, and how to make big style statements on budgets small and large.

Location: Los Angeles
Cost: About $15,000
Designer: Carlos Forteza of CCForteza

BEFORE: Everything in Carlos Forteza’s house was in good shape but “frozen in the 1970s,” he says. In this hall bathroom, vinyl covered almost everything, while an unnecessary “wing” wall made the space feel too compartmentalized.

AFTER: Removing the wall opened up the space, while Carrara marble tile on the walls and floor brought the room into the current decade.
Forteza replaced the plumbing, electrical and insulation, things he always recommends for homes built in the 1940s and ’50s. “These homes have seen their time,” he says. “Ninety-five percent of the time when you gut out, you will see dry rot, termite-infested wood — you want to fix that. Putting new tile down won’t fix what’s wrong inside the walls.”
But while newer homes won’t have these kinds of problems, Forteza says you should be wary of past remodel projects too. “You never know what quality a previous homeowner instituted,” he says. In other words, always build a 10 to 20 percent contingency into your budget, no matter what the size of your bathroom.
Wall tile: Carrara marble, 4 by 12 inches, Home Depot; floor tile: Carrara marble, 12 by 12 inches, Home Depot; sink: Stinson undermount in white (442007- U-0), Sterling by Kohler; faucet: Grandera widespread low spout lavatory (20418000), Grohe; bathtub: Villager in white, 32 by 60 inches, Kohler; tub spout: Grandera, 9¼ inches, Grohe; thermostat trim with diverter: Metris C in chrome (15753001), Hansgrohe; hand shower: Movario 5 (28444000), Grohe

Forteza extended the Caesarstone countertop above the toilet, a move he likes to do in compact bathrooms whenever he can. “That 6 or 7 inches of depth gives a lot of counter space,” he says.
Toilet: Dual Force in white (402086-0), Sterling by Kohler; wall color: Cold Wind (DE6351), flat, Dunn-Edwards; vanity: maple, custom; vanity color: Gray (2121-10), Benjamin Moore; countertop: Frost White, Caesarstone
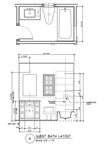
For your remodel, Forteza advises making sure you see and approve drawings with measurements, like the ones shown here depicting the layout and wall elevation of Forteza’s bathroom.

These drawings show the tile layout.
Walls moved: No, but one nonstructural half-wall was removed.
Plumbing moved: Yes. Everything was reconfigured. The shower head switched walls, and the sink plumbing was rerouted from the wall up through the floor.
Plumbing replaced: Yes, and electrical
Professionals hired: Forteza acted as designer and builder.
Special features: Frameless glass without door. “It makes it look nice and clean,” Forteza says.
Splurges: Plumbing fixtures and custom cabinets. “Try to splurge and be happy,” Forteza says. “The difference between a Home Depot cabinet and a custom cabinet is not going to cost your mortgage. You’re going to be looking at it every single day. You might as well save up more and be happy with it.”
Savings: Off-the-shelf tile from a big-box store. “I usually buy tiles from a special tile supplier, but I saw this for a bargain price and bought a bunch,” he says. He also saved on design and building fees by doing the work himself.
Hot Products
People who liked this story also liked